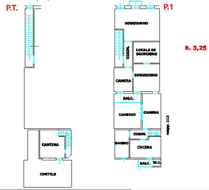
In zona centrale, proponiamo in vendita un appartamento di circa 100 mq con cortile esclusivo.
La composizione è la seguente: Ingresso dalla via e accesso al primo piano in palazzina con 2 unità immobiliari in totale, disimpegno, salotto con balcone con affaccio sulla via e due finestre, soggiorno, prima camera con balcone, seconda camera, disimpegno, cucina, bagno e balcone con piccolo wc esterno al primo piano, cantina e cortile di pertinenza al piano terra.
L’immobile necessita di lavori di ristrutturazione e può essere un ottimo investimento soprattutto per la posizione strategica. Classe energetica in definizione




















