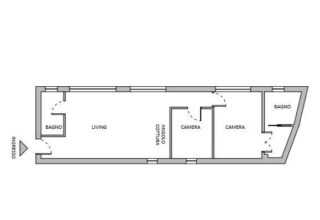
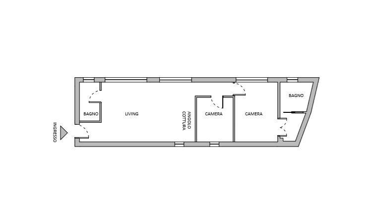
Nella località di Cussorgia, a 10 minuti dal paese di Calasetta, disponiamo di una casa indipendente di circa 65 mq fronte spiaggia. La casa è composta da ingresso, soggiorno con zona cottura, due camere e due bagni. E’ in fase di ristrutturazione, e verrà venduta completamente ultimata. L’immobile dispone di un terreno di circa 3.300 mq. Dal terreno è possibile accedere direttamente alla spiaggia. Ottima occasione.

















